Heat-Explosion Type Disconnector for Zinc Oxide Surge Arrester
The heat-explosion type disconnector is an essential accessory used in series with zinc oxide surge arresters (MOA). Its function is to automatically disconnect the faulty arrester from the power system when a failure occurs, thereby preventing a continuous fault and protecting other electrical equipment.
Additionally, it provides a visible indication of the failed arrester.
The TLB-series disconnector is a thermal explosion-type device, designed and tested in accordance with IEC 60099-4 international standards and equivalent GB specifications, ensuring consistent reliability and safety for power distribution systems.
Working Principle
When the surge arrester encounters an internal failure, the current passing through its varistor sharply increases. The heat-explosion disconnector uses the power frequency short-circuit current to generate an internal arc.
This arc ignites a small explosive charge, which instantly ejects the connection bolt, mechanically disconnecting the arrester’s grounding terminal.
This rapid action isolates the defective arrester and ensures the rest of the system continues safe operation without triggering widespread outages.
Key Features and Advantages
1. Wide Operating Current Range
The disconnector can operate under both high and low power frequency fault currents:
Reliable separation at fault currents exceeding 50A.
Sensitive operation even at low fault currents around 50mA.
This broad range makes it adaptable for various medium- and high-voltage networks under different grounding configurations.
2. Fast and Reliable Action
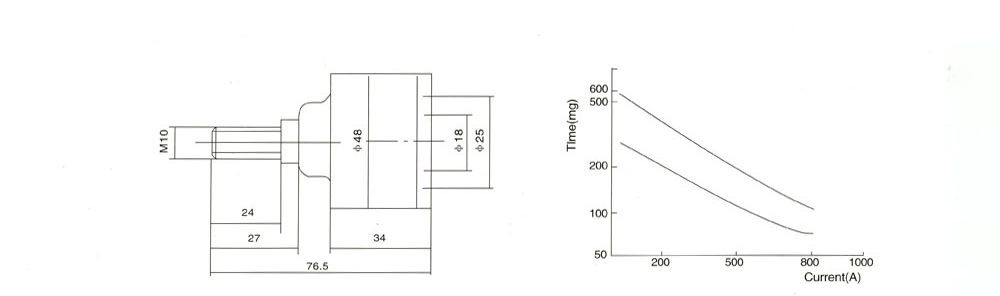
With a disconnection time under 0.5 seconds (at 20A), the device reacts rapidly to prevent damage.
It coordinates perfectly with automatic reclosing breakers, ensuring system continuity after isolation of the failed arrester.
3. High Mechanical Strength & Sealing Integrity
Before activation, the disconnector maintains high tensile strength and tight sealing to resist environmental stress:
RBT-3 type: tensile strength > 2000 N
RBT-4 type: tensile strength > 4000 N
Its robust housing prevents moisture ingress and mechanical fatigue.
4. Easy Installation and Replacement
The threaded connection structure allows quick and secure series installation with any surge arrester. After operation, the disconnector can be easily replaced without disassembling the entire system, minimizing maintenance time.
Technical Parameters
| Parameter | Description |
|---|---|
| Model Type | TLB-1 / RBT Series |
| Applicable Voltage Range | 6 kV – 220 kV systems |
| Operating Current Range | 50 mA – > 50 A |
| Action Type | Heat-explosion disconnection |
| Tensile Strength | ≥ 2000 N (RBT-3) / ≥ 4000 N (RBT-4) |
| Installation Type | Threaded external connection |
| Applicable Systems | Effectively & non-effectively grounded systems |
| Standards Compliance | IEC 60099-4 / GB 11032-2000 / JB/T 8952-2005 |
Arrester Disconnector V–S Characteristics
| Current Level | Power Frequency (A) | Square Wave Impulse (2000 μs) | High Current (4/10 μs) |
|---|---|---|---|
| 20 | Operation time < 0.5 s | — | — |
| 200 | Operation time < 0.04 s | — | — |
| 800 | Operation time < 0.02 s | — | — |
| 600 | — | Continuous (∞) | — |
| 100 | — | — | Continuous (∞) |
These parameters confirm that the disconnector provides instantaneous isolation during short-circuit events while maintaining endurance under impulse and high-current conditions.
Application Scenarios
The heat-explosion disconnector is suitable for:
Substations and distribution transformers
Transmission lines and power distribution networks
Renewable energy stations (solar and wind farms)
Railway electrification and telecommunication systems
Its compatibility with various arrester types and grounding methods makes it an essential safety component for 35 kV and below protection systems.
Product Benefits
✅ Prevents continuous system faults caused by arrester failure
✅ Provides visible indication of disconnection
✅ Fast, reliable isolation under both low and high fault currents
✅ Compact, sealed design ensures long-term durability
✅ Easy maintenance and simple replacement process
Why Choose Wei Shoe Elec
At Wei Shoe Elec, we design and manufacture disconnectors that meet strict IEC 60099-4 performance standards. Our products are widely used by European utilities and Asian renewable projects, proving their stability, quick response, and long service life in real-world conditions.
Contact Us
For detailed technical information or customized disconnector solutions, contact:
Thor – Electrical Engineer, Wei Shoe Elec
📞 Tel: +86 0577 62788197
💬 WhatsApp: +86 159 5777 0984
📧 Email: [email protected]













